
München
Diese perfekt geschnittene Doppelhaushälfte überzeugt durch eine klare, familienfreundliche Struktur:
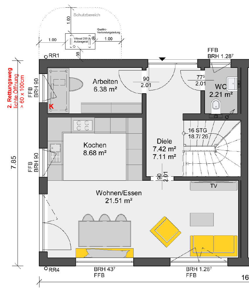
Im Erdgeschoss erwartet Sie ein weitläufiger Wohn- und Essbereich mit direktem Zugang zur offenen Küche sowie ein Homeoffice und ein Gäste-WC. Im Obergeschoss bietet das Haus ein helles Elternschlafzimmer, zwei Kinderzimmer sowie ein hochwertig ausgestattetes Familienbad mit ebenerdiger Dusche. Die geschickte Raumaufteilung schafft viel Platz zum Leben und Entspannen – ein Zuhause, das keine Wünsche offenlässt. Im Dachgeschoss gibt es die Möglichkeit Stauraum zu schaffen.
Erdgeschoss – Offenes Wohnen
• offen gestalteter Wohn-/Essbereich mit Zugang zum Garten
• Gäste-WC: Komfortabel und stilvoll ausgestattet
• Diele & Treppenaufgang: Einladender Eingangsbereich mit Platz für Garderobe
• separates Homeoffice
Obergeschoss – Entspannte Privatsphäre
• Elternschlafzimmer
• zwei Kinderzimmer
• Badezimmer mit bodengleicher Dusche, Waschbecken & WC
Dachgeschoss – noch mehr Platz
• als weiterer Speicherraum nutzbar durch Dachspitzausbau
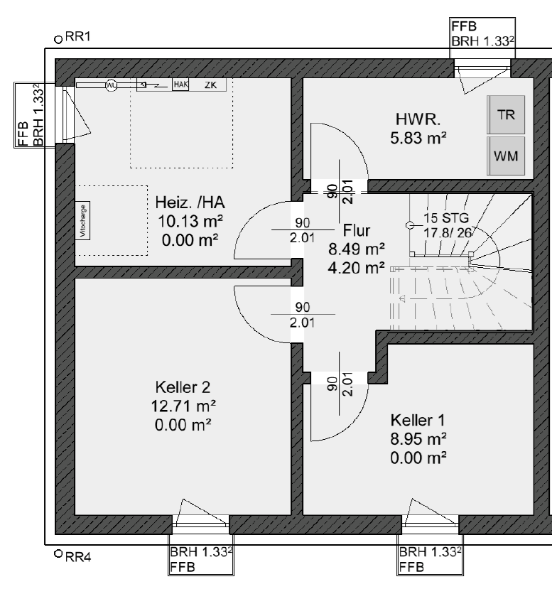
Keller – Mehr Platz
• separater Hauswirtschaftsraum mit Anschluss für Waschmaschine und Trockner
• zwei bewohnbare Kellerräume auch nutzbar als Homeoffice
• separater Heizungsraum
Unser Rundum-Sorglos-Paket für Sie:
Wir begleiten Sie durch den gesamten Bauprozess: Von der ersten individuellen Vorplanung durch unseren Architekten über die behördlichen Genehmigungsverfahren bis hin zur Bodenplatte und Bauüberwachung – wir kümmern uns um alles bis zur Schlüsselübergabe. So können Sie sich entspannt auf Ihr neues Zuhause freuen.
Highlights des Hauses
✅ Zimmer: 5
✅ Homeoffice im Erdgeschoss oder wahlweise im Keller
✅ 1 Badezimmer im OG + 1 Gäste-WC im EG
✅ Nachhaltigkeit: Klimafreundliches Wohngebäude in Holzfachwerkkonstruktion (förderfähig)
✅ Photovoltaik: PV-Vorbereitung bereits vorhanden
Individuelle Anpassungsmöglichkeiten
Das Haus wird bezugsfertig mit Keller auf einer Bodenplatte erstellt. Der angegebene Preis umfasst das Grundstück sowie das schlüsselfertige Haus mit Bodenplatte und Keller, jedoch ohne Baunebenkosten und voraussichtliche Außenanlagen.
Energieeffizienz & Nachhaltigkeit
Die Gebäudebestandteile eines Büdenbender-Hauses erfüllen bereits die hohen Anforderungen einer KfW-Förderung. Das bezugsfertige Haus umfasst unter anderem sämtliche Bodenbeläge, Malerarbeiten und Sanitärinstallationen.
Für eine nachhaltige Energieversorgung kann das Haus mit einer Photovoltaikanlage ausgestattet werden. PV-Vorbereitung vorhanden! Optional kann ein Batteriespeicher ergänzt werden, um die Energieeffizienz weiter zu steigern.
Jetzt Beratungstermin vereinbaren!
Dieses Haus bietet Ihnen ein einzigartiges Wohnerlebnis mit viel Platz für Ihre individuellen Bedürfnisse. Lassen Sie sich diese Chance nicht entgehen und kontaktieren Sie uns noch heute!
📞 Kontaktieren Sie uns für weitere Informationen!
Die Gebäudebestandteile eines Büdenbender-Hauses entsprechen bereits den hohen Anforderungen der KFW40-Förderung. Das gesamte Haus erhält nach Wunsch auch das QNG Energieeffizienz Zertifikat für das ein Förderkredit in Anspruch genommen werden kann. Die Konditionen hierzu entnehmen Sie bitte der KfW.
Besonderheiten:
Zusatzinfos:
Ausstattung
BEZUGSFERTIG
• Komplettausstattung mit Elektro-, Sanitär- und Heizungsinstallation
• WEKA 3-Scheiben-Isolierverglasung, mit 7-Kammer- Profil
• Viessmann- Luftwasserwärmepumpe mit Fußbodenheizung einzelregelbar (nur € 50,--/Monat an Heizkosten)
• Ausstattungsberatung / Werkplanung
(Bemusterung mit einer großen Auswahl an Sanitärobjekten, Fliesen und Bodenbelägen • Produktion ausschließlich in Deutschland
• Nur Markenfabrikate deutscher Hersteller
• Planungs- und Ingenieurleistungen (inkl. Bedarfsanalyse, Architektenleistungen, detailliertes Angebot, Bauantragsgespräch, Bauantragsplanung, Vorabzugsplanung)
• Ausfüllen der Versorgungsanträge
• Energieausweis (Wärme- und Schallschutznachweiß)
• Statische Berechnungen für Ihr Traumhaus
• Überwachung Bauprozess / Bauleitung
• Einrichtung der Baustelle
• Lieferung und Montage (einschließlich Transport, Kran, Gerüst, Baustellen-WC, Abfallcontainer)
• diffusionsoffene und atmungsaktive Außenwand 36,5 cm (atmo-tec+ Klimawand) ganz ohne Folie und Styropor
• Bodenplatte inklusive
• Festpreisgarantie (22 Monate)
• Gewährleistung nach BGB von bis zu fünf Jahren sowie eine 50-jährige Garantie auf die Grundkonstruktion und Standsicherheit
Sonstiges
Zusätzlich fallen Nebenkosten wie Notar, Grunderwerbsteuer etc. an.
Das Grundstück ist bereits erschlossen. Bebaut ist das Grundstück aktuell mit einem alten abrissreifen Einfamilienhaus. Abrisskosten tragen die Käufer je zur Hälfte.
Abbildungen zeigen auch optionale Sonderausstattungen!
Die Immobilie befindet sich in einem charmanten und gut angebundenen Stadtteil von München, der sich durch seine ruhige und dennoch zentrale Lage auszeichnet. Die Höhenlage ist typisch für das Münchner Stadtgebiet und bietet eine angenehme Wohnatmosphäre.
Die Verkehrsanbindung ist hervorragend. Öffentliche Verkehrsmittel wie Busse und U-Bahn sind in wenigen Gehminuten erreichbar, was eine schnelle Verbindung in die Innenstadt und andere Stadtteile ermöglicht. Die Straßenanbindung ist ebenfalls optimal, mit schnellen Zugängen zu den Hauptverkehrsstraßen. Parkmöglichkeiten sind in der Umgebung ausreichend vorhanden, darunter mehrere Parkplätze und ein Parkhaus.
Für den täglichen Bedarf stehen zahlreiche Einrichtungen zur Verfügung. Supermärkte wie PENNY und Rewe sind fußläufig erreichbar, ebenso wie Bäckereien und Apotheken. Bildungseinrichtungen sind zahlreich vorhanden, darunter Kindergärten, Grundschulen und weiterführende Schulen wie das Lehrinstitut Derksen und die Montessori Schule München.
Die Gesundheitsversorgung ist durch die Nähe zu Arztpraxen, Zahnärzten und dem Klinikum Großhadern ausgezeichnet. Spezialkliniken wie das kbo-Kinderzentrum München sind ebenfalls in der Nähe.
Freizeit- und Erholungsmöglichkeiten sind vielfältig. Grünflächen und Parks laden zum Entspannen ein, während Sporteinrichtungen wie die Judohalle TSV Großhadern für sportliche Aktivitäten sorgen. Restaurants und Cafés wie Widmann und Zum Erdinger Weißbräu bieten kulinarische Vielfalt.
Wir laden Sie herzlich dazu ein, unsere interaktive Karte zu nutzen, um sich einen detaillierten Überblick über die Lage der Immobilie zu verschaffen. Sie haben die Möglichkeit, schnell und einfach Informationen zu wichtigen Einrichtungen wie S-Bahnhaltestellen, Arztpraxen, Kindergärten, Schulen, Fitnessstudios und Sehenswürdigkeiten zu erhalten.





