
Willkommen in Ihrem neuen Traumhaus! Das Grundstück für unser Einfamilienhaus liegt nur wenige Gehminuten zum Ammersee und befindet sich in einer sehr ruhigen Straße von Herrsching. Dieses großzügige freistehende Einfamilienhaus bietet Ihnen nicht nur viel Platz, sondern auch eine hochwertige Ausstattung und eine nachhaltige Bauweise. Mit einer Wohnfläche von knapp 136 m² und vier Zimmern ist es ideal für Familien, die modernen Komfort und individuelle Gestaltungsmöglichkeiten suchen.
Diese Haus ist bereits professionell vorgeplant, bietet Ihnen aber trotzdem zu 100 % die bewährt hohe Büdenbender-Qualität sowie Freiraum für individuelle Gestaltung und Ausstattung. Mit einer intelligent aufgeteilten Grundfläche von knapp 140 m² ist dieses Haus ideal für eine 2- bis 4-köpfige Familie. Durch die klare Formsprache und den clever durchdachten Grundriss wirkt es dennoch großzügig. Auf zwei Etagen findet sich ausreichend Platz für ein erfülltes Familienleben. Im Erdgeschoss bietet der komplett offene Wohn-, Ess- und Kochbereich viel Platz zum Entspannen für die ganze Familie. Ebenfalls befindet sich im Erdgeschoss ein großzügiger Hauswirtschaftsraum und ein abgeteilter Wasch- und Trockenraum. Das großzügige Gäste-WC mit Dusche runden das Erdgeschoss ab. Im Obergeschoss ist ausreichend Platz in den Kinderzimmern und im Schlafzimmer. Das Bad kann auf Wunsch mit einer Badewanne ausgestattet werden.
Ihr Traumhaus wird bezugsfertig auf einer Bodenplatte erstellt und auf Wunsch gegen Mehrpreis kann auch ein Keller realisiert werden. Das bezugsfertige Haus beinhaltet u.a. auch sämtliche Bodenbeläge, Malerarbeiten und Sanitärarbeiten. Das Haus ist mit einer Vorbereitung für eine Photovoltaikanlage ausgestattet.
Der Preis beinhaltet das Grundstück inkl. schlüsselfertigem Haus ohne Baunebenkosten und voraussichtlicher Außenanlagen.
Die Gebäudebestandteile eines Büdenbender-Hauses entsprechen bereits den hohen Anforderungen der KFW-Förderung. Das gesamte Haus erhält nach Wunsch das QNG Energieeffizienz Zertifikat für das ein Förderkredit von 150.000 EUR in Anspruch genommen werden kann. Die Konditionen hierzu entnehmen Sie bitte der KfW.
Besonderheiten:
Zusatzinfos:
Ausstattung
BEZUGSFERTIG
• Komplettausstattung mit Elektro-, Sanitär- und Heizungsinstallation
• WEKA 3-Scheiben-Isolierverglasung, mit 7-Kammer- Profil
• Viessmann- Luftwasserwärmepumpe mit Fußbodenheizung einzelregelbar (nur € 50,--/Monat an Heizkosten)
• Ausstattungsberatung / Werkplanung
(Bemusterung mit einer großen Auswahl an Sanitärobjekten, Fliesen und Bodenbelägen
• Produktion ausschließlich in Deutschland
• Nur Markenfabrikate deutscher Hersteller
• Planungs- und Ingenieurleistungen (inkl. Bedarfsanalyse, Architektenleistungen, detailliertes Angebot, Bauantragsgespräch, Bauantragsplanung, Vorabzugsplanung)
• Ausfüllen der Versorgungsanträge
• Energieausweis (Wärme- und Schallschutznachweiß)
• Statische Berechnungen für Ihr Traumhaus
• Überwachung Bauprozess / Bauleitung
• Einrichtung der Baustelle
• Lieferung und Montage (einschließlich Transport, Kran, Gerüst, Baustellen-WC, Abfallcontainer)
• diffusionsoffene und atmungsaktive Außenwand 36,5 cm (atmo-tec+ Klimawand) ganz ohne Folie und Styropor
• Optional: Keller statt Fundamentplatte (gegen Mehrpreis)
• Festpreisgarantie (22 Monate)
• Gewährleistung nach BGB von bis zu fünf Jahren sowie eine 50-jährige Garantie auf die Grundkonstruktion und Standsicherheit
Erdgeschoss – Offenes Wohnen
• Wohn-/Essbereich: Lichtdurchflutetes Wohnzimmer mit offener Gestaltung und direktem Zugang zur Terrasse.
• Hauswirtschaftsraum/Hobbyraum: Praktischer Stauraum mit Platz für Waschmaschine & Trockner.
• Gäste-WC: Komfortabel und stilvoll ausgestattet mit bodengleicher Dusche
• Diele & Treppenaufgang: Einladender Eingangsbereich mit Garderobe und Stauraum unter der Treppe
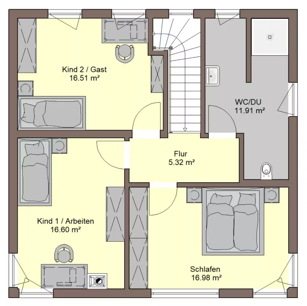
Obergeschoss – Entspannte Privatsphäre
• Schlafzimmer: Geräumiges Elternschlafzimmer mit ausreichend Platz für Schränke.
• 2 Kinderzimmer : Helle Räume, perfekt für Kinder oder Gäste.
• Badezimmer: Großzügiges Familienbad mit bodengleicher Dusche, Waschbecken & WC, optional kann hier die Tür versetzt werden und eine Badewanne hinzugefügt werden
Unser Rundum-Sorglos-Paket für Sie:
Wir begleiten Sie durch den gesamten Bauprozess: Von der ersten individuellen Vorplanung durch unseren Architekten über die behördlichen Genehmigungsverfahren bis hin zur Bodenplatte und Bauüberwachung – wir kümmern uns um alles bis zur Schlüsselübergabe. So können Sie sich entspannt auf Ihr neues Zuhause freuen.
Highlights des Hauses
✅ Zimmer: 4 (davon 3 Schlafzimmer)
✅ Bäder: 1 Badezimmer im OG + 1 Gäste-WC mit Dusche im EG
✅ Nachhaltigkeit: Klimafreundliches Wohngebäude in Holzfachwerkkonstruktion (förderfähig)
✅ Keller: optional – zu allen unseren Häusern ist ein Keller möglich
Individuelle Anpassungsmöglichkeiten
Das Haus wird bezugsfertig auf einer Bodenplatte erstellt. Auf Wunsch kann auch ein Keller realisiert werden (gegen Aufpreis). Der angegebene Preis umfasst das Grundstück sowie das schlüsselfertige Haus mit Bodenplatte, jedoch ohne Baunebenkosten und voraussichtliche Außenanlagen.
Energieeffizienz & Nachhaltigkeit
Die Gebäudebestandteile eines Büdenbender-Hauses erfüllen bereits die hohen Anforderungen einer KfW-Förderung. Das bezugsfertige Haus umfasst unter anderem sämtliche Bodenbeläge, Malerarbeiten und Sanitärinstallationen. Für eine nachhaltige Energieversorgung kann das Haus mit einer Photovoltaikanlage ausgestattet werden. Optional kann ein Batteriespeicher ergänzt werden, um die Energieeffizienz weiter zu steigern.
Jetzt Beratungstermin vereinbaren!
Dieses Haus bietet Ihnen ein einzigartiges Wohnerlebnis mit viel Platz für Ihre individuellen Bedürfnisse. Lassen Sie sich diese Chance nicht entgehen und kontaktieren Sie uns noch heute!
📞 Kontaktieren Sie uns für weitere Informationen!
Sonstiges
Der Kaufpreis bezieht sich auf das schlüsselfertige Einfamilienhaus inklusive Grundstück.
Provision für Käufer: 35.521,50 EUR inkl.. ges. Mwst.
Die Provision ist nur für den Grundstücksanteil in Höhe 3,57 % inkl. Mwst. von 995..000 € an den Grundstücksmakler fällig.
Zusätzlich fallen Nebenkosten wie Notar, Grunderwerbsteuer etc. an.
Das Grundstück ist unbebaut - keine Abrisskosten- und voll erschlossen.
Bilder und Grundrisse sind als künstlerische Illustrationen zu verstehen.
Bitte beachten Sie, dass das Angebot auf Grundlage des geltenden Bebauungsplans erstellt wurde und ein Bauantrag erforderlich ist. Selbstverständlich übernehmen wir die vollständige Antragstellung für Sie – dieser Service ist bereits im Hauspreis enthalten
Herrsching (10.756 Einwohner Stand: 15.01.2024), am Ostufer des Ammersees unterhalb
vom Kloster Andechs gelegen, zählt mit seinen zahlreichen Freizeit- und
Erholungsmöglichkeiten zu den besten Wohngegenden im bayerischen Voralpenland.
Der wohl begehrteste Ort im Fünfseenland liegt ca. 40 Kilometer südwestlich von
München und gehört zur Kreisstadt Starnberg. Der beliebte Wohnort, der zugleich ein
gern besuchter Urlaubsort ist, besticht durch seine vielen schönen Cafés, Restaurants und
Boutiquen. Seine wunderschöne Uferpromenade ist die längste Deutschlands. Vom
Dampfersteg aus kann man mit den Schiffen der bayerischen Seenschifffahrt Rundfahrten
zu den anderen Orten des Sees unternehmen. An der Promenade, im Biergarten oder im
Schlosspark lassen sich die Sommerabende stimmungsvoll genießen. Vor gut 100 Jahren stellte schon Karl Stieler fest, dass im ganzen Seengebiet dieser Winkel
vielleicht die vollendenste Idylle sei. Daran hat sich bis heute nichts geändert!
Anbindung:
S-Bahnstation S8 Herrsching (Flughafenlinie!)/ Fahrzeit zum Münchner Hauptbahnhof ca.
50 Minuten; ca. 10 Minuten zur Autobahn A96 München-Lindau / Fahrzeit nach München
ca. 35 Minuten/ Flughafen München ca. 55 Minuten
Freizeit & Erholung:
Naherholungsgebiete in unmittelbarer Nähe; am Ammersee gelegen; Pilsensee,
Wörthsee, Weßlinger See, Starnberger See ca. 4 – 20 Minuten; Alpen in ca. 55 Minuten
(Zugspitze/Garmisch); Strandbad Seewinkel mit Beach-Volleyballplatz, Surfschule,
Stand-Up-Paddlingverleih, Minigolf, Fußballplatz, Spielplätze, Tennisanlagen, Sportvereine
im Ort
Infrastruktur:
Kinderkrippen, Kindergärten, Hort, Christian-Morgenstern-Grund- und Mittelschule
Herrsching und Realschule Herrsching am Ort; Christoph-Probst-Gymnasium in Gilching
(4 S-Bahn-Stationen), Gymnasium Tutzing (Busverbindung) und Carl-Spitzweg-Gymnasium
und Max-Born-Gymnasium in Germering, Baubeginn Gymnasium in Herrsching bereits
begonnen, Inbetriebnahme Schuljahr 2024/2025; Einkaufsmöglichkeiten jeglicher Art,
Ärzte, Apotheken, Krankenhaus am Ort und in Seefeld







