
Großzügiges EFH in Mammendorf.
Willkommen in Ihrem neuen Traumhaus! Dieses großzügige freistehende Einfamilienhaus bietet Ihnen nicht nur viel Platz, sondern auch eine hochwertige Ausstattung und eine nachhaltige Bauweise. Mit einer Wohnfläche von knapp 139 m² und 6 Zimmern ist es ideal für Familien, die modernen Komfort und individuelle Gestaltungsmöglichkeiten suchen.
Auf einem ca. 1150 qm großem Grundstück werden zwei Einfamilienhäuser errichtet. Dieses Hausangebot bezieht sich auf das hintere Haus.
Moderner Grundriss mit durchdachter Raumaufteilung – ideal für Familien:
Dieses großzügig geschnittene Einfamilienhaus überzeugt durch eine klare, familienfreundliche Struktur: Im Erdgeschoss erwartet Sie ein weitläufiger Wohn- und Essbereich mit direktem Zugang zur offenen Küche und praktischer Speisekammer (möglich unter der Treppe). Ein zusätzliches Zimmer eignet sich ideal als Homeoffice. Neben dem Hauswirtschaftsraum befindet sich im Erdgeschoss auch ein Gäste-WC mit höchsten Komfort.
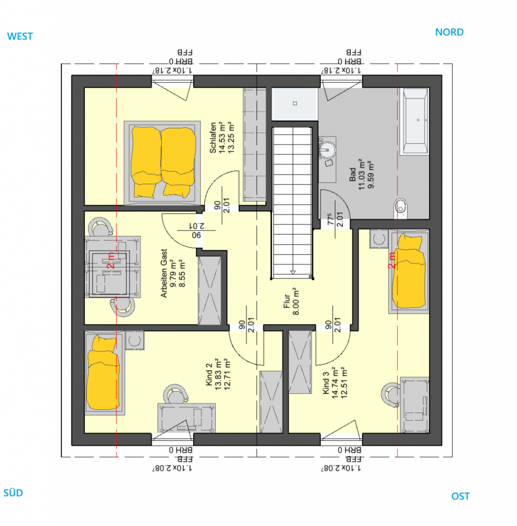
Im Obergeschoss bietet das Haus zwei helle Kinderzimmer, ein großes Elternschlafzimmer, ein weiteres Arbeitszimmer/Gästezimmer sowie ein hochwertig ausgestattetes Familienbad. Die geschickte Raumaufteilung schafft viel Platz zum Leben, Arbeiten und Entspannen – ein Zuhause, das keine Wünsche offenlässt.
Erdgeschoss – Offenes Wohnen
• Wohn-/Essbereich: Lichtdurchflutetes Wohnzimmer mit offener Gestaltung und direktem Zugang zur Terrasse.
• Homeoffice/Arbeitszimmer
• Hauswirtschaftsraum: Praktischer
Stauraum mit Platz für Waschmaschine & Trockner.
• Gäste-WC: Komfortabel und stilvoll ausgestattet
• Diele & Treppenaufgang: Einladender Eingangsbereich mit Platz für eine Garderobe
Obergeschoss – Entspannte Privatsphäre
• Schlafzimmer: Geräumiges Elternschlafzimmer
• 2 Kinderzimmer : Helle Räume
• Badezimmer: Großzügiges Familienbad mit Waschbecken & WC sowie Badewanne
• Arbeitszimmer auch als Gästezimmer oder Ankleide denkbar
Unser Rundum-Sorglos-Paket für Sie:
Wir begleiten Sie durch den gesamten Bauprozess: Von der ersten individuellen Vorplanung durch unseren Architekten über die behördlichen Genehmigungsverfahren bis hin zur Bodenplatte und Bauüberwachung – wir kümmern uns um alles bis zur Schlüsselübergabe. So können Sie sich entspannt auf Ihr neues Zuhause freuen.
Highlights des Hauses
• Zimmer: 6 (davon 3 Schlafzimmer)
• Gästezimmer und Arbeitszimmer
• Bäder: 1 Badezimmer im OG + 1 Gäste-WC im EG
• Nachhaltigkeit: Klimafreundliches Wohngebäude in Holzfachwerkkonstruktion (förderfähig)
• Keller: optional – zu allen unseren Häusern ist ein Keller möglich
Individuelle Anpassungsmöglichkeiten
Das Haus wird bezugsfertig auf einer Bodenplatte erstellt. Auf Wunsch kann auch ein Keller realisiert werden (gegen Aufpreis). Der angegebene Preis umfasst das Grundstück sowie das schlüsselfertige Haus mit Bodenplatte, jedoch ohne Baunebenkosten und voraussichtliche Außenanlagen.
Energieeffizienz & Nachhaltigkeit
Die Gebäudebestandteile eines Büdenbender-Hauses erfüllen bereits die hohen Anforderungen einer KfW-Förderung. Das bezugsfertige Haus umfasst unter anderem sämtliche Bodenbeläge, Malerarbeiten und Sanitärinstallationen.
Für eine nachhaltige Energieversorgung kann das Haus mit einer Photovoltaikanlage ausgestattet werden. Optional kann ein Batteriespeicher ergänzt werden, um die Energieeffizienz weiter zu steigern.
Das gesamte Haus erhält nach Wunsch das KfW40 Energieeffizienz Zertifikat für das ein Förderkredit von 100.000 EUR in Anspruch genommen werden kann. Die Konditionen hierzu entnehmen Sie bitte der KfW.
Jetzt Beratungstermin vereinbaren!
Dieses Haus bietet Ihnen ein einzigartiges Wohnerlebnis mit viel Platz für Ihre individuellen Bedürfnisse. Lassen Sie sich diese Chance nicht entgehen und kontaktieren Sie uns noch heute!
📞 Kontaktieren Sie uns für weitere Informationen!
Der Preis beinhaltet das Grundstück inkl. schlüsselfertigem Haus ohne Baunebenkosten und voraussichtlicher Außenanlagen.
Besonderheiten:
Zusatzinfos:
Ausstattung
BEZUGSFERTIG
• Komplettausstattung mit Elektro-, Sanitär- und Heizungsinstallation
• WEKA 3-Scheiben-Isolierverglasung, mit 7-Kammer- Profil
• Viessmann- Luftwasserwärmepumpe mit Fußbodenheizung einzelregelbar (nur € 50,--/Monat an Heizkosten)
• Ausstattungsberatung / Werkplanung
(Bemusterung mit einer großen Auswahl an Sanitärobjekten, Fliesen und Bodenbelägen
• Produktion ausschließlich in Deutschland
• Nur Markenfabrikate deutscher Hersteller
• Planungs- und Ingenieurleistungen (inkl. Bedarfsanalyse, Architektenleistungen, detailliertes Angebot, Bauantragsgespräch, Bauantragsplanung, Vorabzugsplanung)
• Ausfüllen der Versorgungsanträge
• Energieausweis (Wärme- und Schallschutznachweiß)
• Statische Berechnungen für Ihr Traumhaus
• Überwachung Bauprozess / Bauleitung
• Einrichtung der Baustelle
• Lieferung und Montage (einschließlich Transport, Kran, Gerüst, Baustellen-WC, Abfallcontainer)
• diffusionsoffene und atmungsaktive Außenwand 36,5 cm (atmo-tec+ Klimawand) ganz ohne Folie und Styropor
• Optional: Keller statt Fundamentplatte (gegen Mehrpreis)
• Festpreisgarantie (22 Monate)
• Gewährleistung nach BGB von bis zu fünf Jahren sowie eine 50-jährige Garantie auf die Grundkonstruktion und Standsicherheit
Energieeffizienz & Nachhaltigkeit
Die Gebäudebestandteile eines Büdenbender-Hauses erfüllen bereits die hohen Anforderungen einer KfW-Förderung. Das bezugsfertige Haus umfasst unter anderem sämtliche Bodenbeläge, Malerarbeiten und Sanitärinstallationen. Für eine nachhaltige Energieversorgung kann das Haus mit einer Photovoltaikanlage ausgestattet werden. Optional kann ein Batteriespeicher ergänzt werden, um die Energieeffizienz weiter zu steigern.
Jetzt Beratungstermin vereinbaren!
Dieses Haus bietet Ihnen ein einzigartiges Wohnerlebnis mit viel Platz für Ihre individuellen Bedürfnisse. Lassen Sie sich diese Chance nicht entgehen und kontaktieren Sie uns noch heute!
📞 Kontaktieren Sie uns für weitere Informationen!
Sonstiges
Der Kaufpreis bezieht sich auf das schlüsselfertige Einfamilienhaus inklusive Grundstück.
Zusätzlich fallen Nebenkosten wie Notar, Grunderwerbsteuer etc. an.
Die Provision ist nur für den Grundstücksanteil in Höhe von 18.456,90 EUR (3,57 % inkl.. Mwst.) an den Grundstücksmakler fällig.
Das Grundstück ist unbebaut - keine Abrisskosten- und voll erschlossen.
Bilder und Grundrisse sind als künstlerische Illustrationen zu verstehen.
Mammendorf liegt im westlichen Münchner Umland im Landkreis Fürstenfeldbruck und bietet eine gelungene Kombination aus naturnahem Wohnen und sehr guter Verkehrsanbindung. Die Gemeinde mit rund 4.900 Einwohnern überzeugt durch ihre ruhige, familienfreundliche Atmosphäre und eine solide Infrastruktur.
Der Ort verfügt über einen S-Bahnhof (S3) mit direkter Verbindung nach München; der Münchner Hauptbahnhof ist in ca. 35 Minuten erreichbar. Über die nahegelegene A8 bestehen zudem schnelle Anbindungen Richtung München und Augsburg.
Zahlreiche Einkaufsmöglichkeiten, Ärzte, Apotheken, Kindergärten und eine Grundschule sind vor Ort vorhanden. Weiterführende Schulen befinden sich in den umliegenden Gemeinden und sind gut erreichbar.
Für Freizeit und Erholung sorgen das beliebte Freibad mit Badesee, weitläufige Rad- und Spazierwege entlang der Maisach sowie ein aktives Vereinsleben. Mammendorf ist damit ein attraktiver Wohnort für Pendler, Familien und alle, die ruhiges Wohnen mit guter Erreichbarkeit verbinden möchten..

