
Großes EFH in Bernried (Starnberger See).
Willkommen in Ihrem neuen Traumhaus! Dieses großzügige Einfamilienhaus liegt unverbaut in Feldrandlage mit freiem Blick zum Sonnenuntergang. Es bietet Ihnen nicht nur viel Platz, sondern auch eine hochwertige Ausstattung und eine nachhaltige Bauweise. Mit einer Wohnfläche von knapp 167 m² und 7 Zimmern ist es ideal für Familien, die modernen Komfort und individuelle Gestaltungsmöglichkeiten suchen.
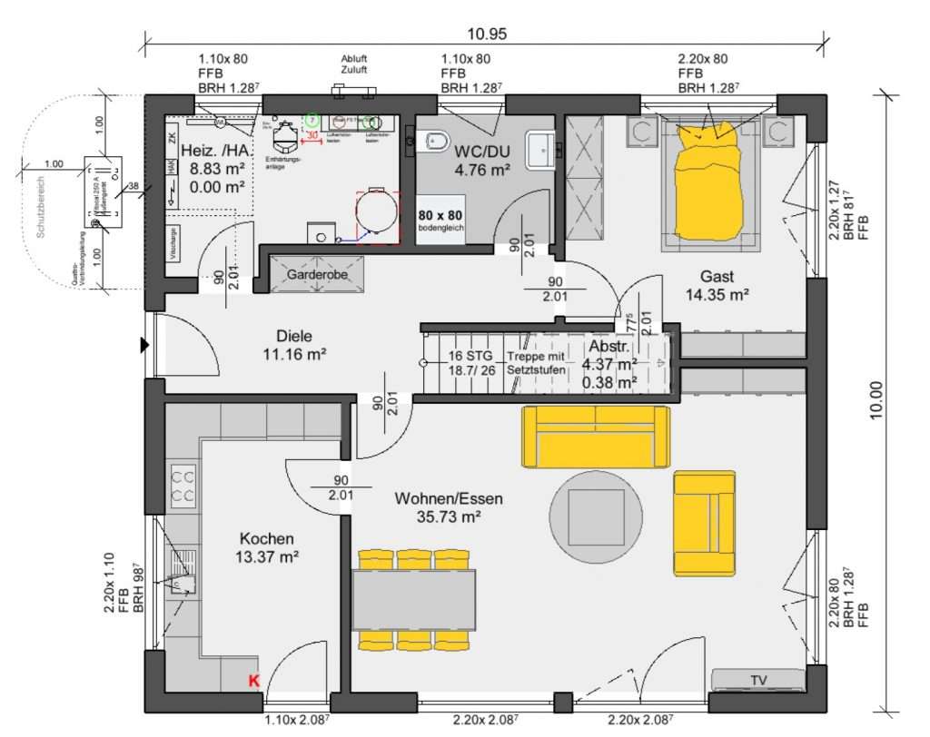
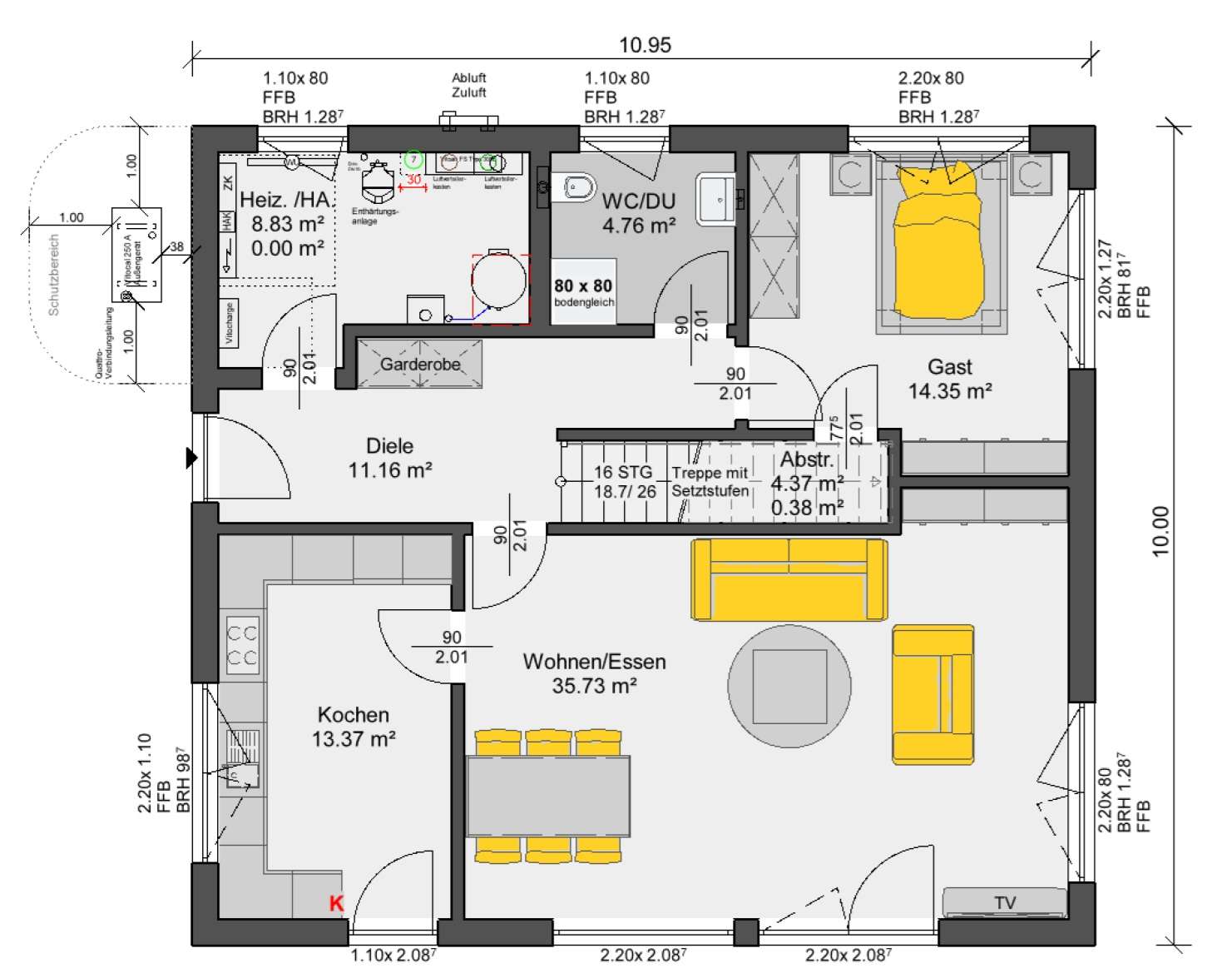
Erdgeschoss – Offenes Wohnen
• Wohn-/Essbereich: Lichtdurchflutetes Wohnzimmer mit offener Gestaltung und direktem Zugang zur Terrasse.
• Küche : separate Küche, auch zum Wohnzimmer hin offen bei Bedarf
• Büro/Arbeitszimmer: Ideal für Homeoffice oder als Gästezimmer nutzbar mit Stauraum unter der Treppe
• Hauswirtschaftsraum/Hobbyraum: Praktischer Stauraum
• Gäste-WC: Komfortabel und stilvoll ausgestattet mit bodengleicher Dusche
• Diele & Treppenaufgang: Einladender Eingangsbereich mit Garderobe.
Obergeschoss – Entspannte Privatsphäre
• Schlafzimmer: Geräumiges Elternschlafzimmer mit separater Ankleide.
• zwei Kinderzimmer : große und helle Räume
• Badezimmer: Großzügiges Familienbad mit Badewanne, bodengleicher Dusche, Waschbecken & WC.
Dach – mehr Stauraum
• praktische Einschubtreppe als Zugang zum Stauraum unterm Dach
Unser Rundum-Sorglos-Paket für Sie:
Wir begleiten Sie durch den gesamten Bauprozess: Von der ersten individuellen Vorplanung durch unseren Architekten über die behördlichen Genehmigungsverfahren bis hin zur Bodenplatte und Bauüberwachung – wir kümmern uns um alles bis zur Schlüsselübergabe. So können Sie sich entspannt auf Ihr neues Zuhause freuen.
Highlights des Hauses
✅ Zimmer: 7 (davon 4 Schlafzimmer)
✅ Bäder: 1 Badezimmer im OG + 1 Gäste-WC mit Dusche im EG
✅ Nachhaltigkeit: Klimafreundliches Wohngebäude in Holzfachwerkkonstruktion (KfW40 förderfähig)
✅ Keller: optional gegen Aufpreis
Individuelle Anpassungsmöglichkeiten
Das Haus wird bezugsfertig inkl. Keller auf einer Bodenplatte erstellt. Der angegebene Preis umfasst das Grundstück sowie das schlüsselfertige Haus mit Bodenplatte und Keller, jedoch ohne Baunebenkosten und voraussichtliche Außenanlagen. Der Grundriss ist änderbar.
Energieeffizienz & Nachhaltigkeit
Die Gebäudebestandteile eines Büdenbender-Hauses erfüllen bereits die hohen Anforderungen einer KfW-Förderung. Das bezugsfertige Haus umfasst unter anderem sämtliche Bodenbeläge, Malerarbeiten und Sanitärinstallationen.
Für eine nachhaltige Energieversorgung kann das Haus mit einer Photovoltaikanlage ausgestattet werden. Optional kann ein Batteriespeicher ergänzt werden, um die Energieeffizienz weiter zu steigern.
Jetzt Beratungstermin vereinbaren!
Dieses Haus bietet Ihnen ein einzigartiges Wohnerlebnis mit viel Platz für Ihre individuellen Bedürfnisse. Lassen Sie sich diese Chance nicht entgehen und kontaktieren Sie uns noch heute!
📞 Kontaktieren Sie uns für weitere Informationen!
Der Preis beinhaltet das Grundstück inkl. schlüsselfertigem Haus ohne Baunebenkosten und voraussichtlicher Außenanlagen.
Die Gebäudebestandteile eines Büdenbender-Hauses entsprechen bereits den hohen Anforderungen der KFW-Förderung. Das gesamte Haus erhält nach Wunsch das KfW40 Energieeffizienz Zertifikat für das ein Förderkredit von 100.000 EUR in Anspruch genommen werden kann. Die Konditionen hierzu entnehmen Sie bitte der KfW.
Besonderheiten:
Zusatzinfos:
Ausstattung
BEZUGSFERTIG
• Komplettausstattung mit Elektro-, Sanitär- und Heizungsinstallation
• WEKA 3-Scheiben-Isolierverglasung, mit 7-Kammer- Profil
• Viessmann- Luftwasserwärmepumpe mit Fußbodenheizung einzelregelbar (nur € 50,--/Monat an Heizkosten)
• Ausstattungsberatung / Werkplanung
(Bemusterung mit einer großen Auswahl an Sanitärobjekten, Fliesen und Bodenbelägen
• Produktion ausschließlich in Deutschland
• Nur Markenfabrikate deutscher Hersteller
• Planungs- und Ingenieurleistungen (inkl. Bedarfsanalyse, Architektenleistungen, detailliertes Angebot, Bauantragsgespräch, Bauantragsplanung, Vorabzugsplanung)
• Ausfüllen der Versorgungsanträge
• Energieausweis (Wärme- und Schallschutznachweiß)
• Statische Berechnungen für Ihr Traumhaus
• Überwachung Bauprozess / Bauleitung
• Einrichtung der Baustelle
• Lieferung und Montage (einschließlich Transport, Kran, Gerüst, Baustellen-WC, Abfallcontainer)
• diffusionsoffene und atmungsaktive Außenwand 36,5 cm (atmo-tec+ Klimawand) ganz ohne Folie und Styropor
• Optional: Keller statt Fundamentplatte (gegen Mehrpreis)
• Festpreisgarantie (22 Monate)
• Gewährleistung nach BGB von bis zu fünf Jahren sowie eine 50-jährige Garantie auf die Grundkonstruktion und Standsicherheit
Keller – ausgebaut und "weiße"Wanne
• Hauswirtschaftsraum mit viel Platz für Waschmaschine und Trockner.
• drei großzügig gestaltete Räume mit viel Lagerplatz oder als Hobbyräume nutzbar.
Erdgeschoss – Offenes Wohnen
• Wohn-/Essbereich: Lichtdurchflutetes Wohnzimmer mit offener Gestaltung und direktem Zugang zur Sonnenterrasse.
• Arbeits- bzw. Gästezimmer.
• Gäste-WC: Komfortabel und stilvoll ausgestattet
• Diele & Treppenaufgang: Einladender Eingangsbereich mit Garderobe
Dachgeschoss – Entspannte Privatsphäre
• Schlafzimmer: Geräumiges Elternschlafzimmer mit separater Ankleide.
• 2 Kinderzimmer : Helle Räume, perfekt für Kinder oder Gäste.
• Badezimmer: Großzügiges Familienbad mit Badewanne, bodengleicher Dusche, Waschbecken & WC
Unser Rundum-Sorglos-Paket für Sie:
Wir begleiten Sie durch den gesamten Bauprozess: Von der ersten individuellen Vorplanung durch unseren Architekten über die behördlichen Genehmigungsverfahren bis hin zur Bodenplatte und Bauüberwachung – wir kümmern uns um alles bis zur Schlüsselübergabe. So können Sie sich entspannt auf Ihr neues Zuhause freuen.
Highlights des Hauses
✅ Zimmer: 7 (davon 4 Schlafzimmer)
✅ Bäder: 1 Badezimmer im OG + 1 Gäste-WC mit Dusche im EG
✅ Nachhaltigkeit: Klimafreundliches Wohngebäude in Holzfachwerkkonstruktion (KfW40 förderfähig)
✅ inklusive Bodenplatte
Individuelle Anpassungsmöglichkeiten
Das Haus wird bezugsfertig inkl. Bodenplatte erstellt. Der angegebene Preis umfasst das Grundstück sowie das schlüsselfertige Haus mit Keller, jedoch ohne Baunebenkosten und voraussichtliche Außenanlagen.
Energieeffizienz & Nachhaltigkeit
Die Gebäudebestandteile eines Büdenbender-Hauses erfüllen bereits die hohen Anforderungen einer KfW-Förderung. Das bezugsfertige Haus umfasst unter anderem sämtliche Bodenbeläge, Malerarbeiten und Sanitärinstallationen. Für eine nachhaltige Energieversorgung kann das Haus mit einer Photovoltaikanlage ausgestattet werden. Optional kann ein Batteriespeicher ergänzt werden, um die Energieeffizienz weiter zu steigern.
Jetzt Beratungstermin vereinbaren!
Dieses Haus bietet Ihnen ein einzigartiges Wohnerlebnis mit viel Platz für Ihre individuellen Bedürfnisse. Lassen Sie sich diese Chance nicht entgehen und kontaktieren Sie uns noch heute!
📞 Kontaktieren Sie uns für weitere Informationen!
Sonstiges
Der Kaufpreis bezieht sich auf das schlüsselfertige Einfamilienhaus inklusive Grundstück.
Zusätzlich fallen Nebenkosten wie Notar, Grunderwerbsteuer etc. an.
Das Grundstück ist unbebaut - keine Abrisskosten- und voll erschlossen.
Bilder und Grundrisse sind als künstlerische Illustrationen zu verstehen.
Bitte beachten Sie, dass das Angebot auf Grundlage des geltenden Bebauungsplans erstellt wurde und ein Bauantrag erforderlich ist. Selbstverständlich übernehmen wir die vollständige Antragstellung für Sie – dieser Service ist bereits im Hauspreis enthalten
Bernried am Starnberger See (ca. 2.300 Einwohner, Stand: 2024)
Das malerische Bernried liegt am Westufer des Starnberger Sees und zählt zu den schönsten und begehrtesten Wohnlagen im bayerischen Voralpenland. Der idyllische Ort gehört zum Landkreis Weilheim-Schongau und liegt nur rund 50 Kilometer südlich von München.
Bernried besticht durch seine außergewöhnliche Lage direkt am See, seine gepflegten Gärten und historischen Häuser sowie durch die gelungene Verbindung von Natur, Kultur und Lebensqualität. Das Ortsbild ist geprägt von charmanten Gasthöfen, kleinen Cafés und traditionsreichen Anwesen. Besonders bekannt ist Bernried durch das Buchheim Museum der Phantasie, das Kunst und Architektur inmitten einer einzigartigen Parklandschaft vereint.
Die weitläufige Uferpromenade mit Bootsanlegern und Badeplätzen lädt zum Flanieren und Entspannen ein. Hier lassen sich laue Sommerabende bei herrlichem Alpenblick genießen – ob im Biergarten, im Museumscafé oder am Wasser. Auch zahlreiche Wander- und Radwege führen direkt vom Ort in die umliegende Natur und machen Bernried zu einem Paradies für Freizeit und Erholung.
Anbindung:
Bernried verfügt über eine eigene Bahnstation (Bayerische Regiobahn, Strecke München–Kochel); Fahrzeit zum Münchner Hauptbahnhof ca. 55 Minuten. Die Autobahn A95 (München–Garmisch) erreicht man in etwa 20 Minuten, Fahrzeit nach München ca. 40 Minuten, zum Flughafen München ca. 60–70 Minuten.
Freizeit & Erholung:
Direktlage am Starnberger See mit Strandbad, Segelclub und Badeplätzen
Buchheim Museum der Phantasie, Schloss Bernried, Kloster Bernried
Zahlreiche Wander- und Radwege rund um den See
Golfclub Hohenpähl und Golfclub Feldafing in wenigen Minuten erreichbar
Alpen in ca. 60 Minuten (Zugspitze/Garmisch)
Infrastruktur:
Kinderkrippe, Kindergarten und Grundschule im Ort
Weiterführende Schulen in Tutzing (Realschule und Gymnasium, ca. 5 Minuten mit der Bahn)
Einkaufsmöglichkeiten für den täglichen Bedarf, Ärzte, Apotheken und Gastronomie im Ort
Krankenhäuser in Tutzing und Weilheim







