
Großes EFH in Starnberg.
Willkommen in Ihrem neuen Zuhause – einem Rückzugsort, der modernes Wohnen, Nachhaltigkeit und architektonische Eleganz auf beeindruckende Weise vereint. Auf einem der letzten traumhaften Grundstücke Starnbergs entsteht dieses individuell geplante Einfamilienhaus – entworfen, um den Ansprüchen anspruchsvoller Familien und Investoren gleichermaßen gerecht zu werden.
Mit einer Wohnfläche von rund 195,72 m² und einem großzügigen Grundstück von 1.314 m² bietet das Haus Freiraum für Ihre individuellen Lebensentwürfe: offene, lichtdurchflutete Räume, klare Linien, hochwertige Materialien und eine Architektur, die Natürlichkeit und Stil harmonisch miteinander verbindet.
Hier erleben Sie Wohnqualität auf höchstem Niveau – ob beim Frühstück mit Blick ins Grüne, beim Familienabend im großzügigen Wohnbereich oder beim Entspannen im Garten am idyllischen Siebenquellenbach.
Dieses Zuhause steht für zeitlose Schönheit, energieeffiziente Bauweise und ein Lebensgefühl, das jeden Tag ein Stück Urlaub sein lässt.
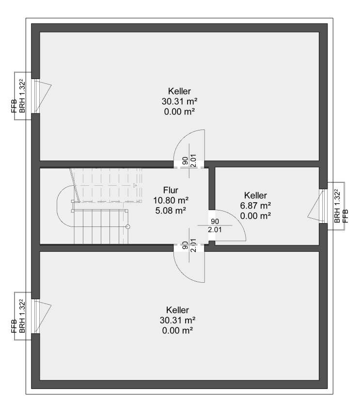
Kellergeschoss
• zwei große Räume, die als Hobbyraum oder Arbeitszimmer genutzt werden können
• ein weiterer Kellerraum als Stauraum oder für die Heizung (anstatt Erdgeschoss)
Erdgeschoss – Offenes Wohnen
• Wohn-/Essbereich: Lichtdurchflutetes Wohnzimmer mit offener Gestaltung und direktem Zugang zur Terrasse.
• Küche : separater Küchenbereich mit Kochinsel
• Hauswirtschaftsraum mit Platz für Waschmaschine und Trockner (dieser Raum kann auch wahlweise in den Keller verlegt werden)
• Gäste-WC: Komfortabel und stilvoll ausgestattet mit bodengleicher Dusche
• Diele & Treppenaufgang: Einladender Eingangsbereich mit Garderobe.
Obergeschoss – Entspannte Privatsphäre
• Schlafzimmer: Geräumiges Elternschlafzimmer mit separater Ankleide.
• zwei Kinderzimmer : große und helle Räume
• Badezimmer: Großzügiges Familienbad mit Badewanne, bodengleicher Dusche, zwei Waschbecken & WC.
Dachgeschoss für mehr vom Wohnen
• Gäste und Arbeitszimmer finden hier Ihren Platz
• praktische Abstellkammer für mehr Stauraum
Unser Rundum-Sorglos-Paket für Sie:
Wir begleiten Sie durch den gesamten Bauprozess: Von der ersten individuellen Vorplanung durch unseren Architekten über die behördlichen Genehmigungsverfahren bis hin zur Bodenplatte und Bauüberwachung – wir kümmern uns um alles bis zur Schlüsselübergabe. So können Sie sich entspannt auf Ihr neues Zuhause freuen.
Highlights des Hauses
✅ Zimmer: 6 (davon 4 Schlafzimmer)
✅ Bäder: 1 Badezimmer im OG + 1 Gäste-WC mit Dusche im EG
✅ Nachhaltigkeit: Klimafreundliches Wohngebäude in Holzfachwerkkonstruktion (KfW40 förderfähig)
✅ Keller: optional hier HWR Raum aus dem Erdgeschoss
Individuelle Anpassungsmöglichkeiten
Das Haus wird bezugsfertig inkl. Keller auf einer Bodenplatte erstellt. Der angegebene Preis umfasst das Grundstück sowie das schlüsselfertige Haus mit Bodenplatte und Keller, jedoch ohne Baunebenkosten und voraussichtliche Außenanlagen. Der Grundriss ist änderbar.
Energieeffizienz & Nachhaltigkeit
Die Gebäudebestandteile eines Büdenbender-Hauses erfüllen bereits die hohen Anforderungen einer KfW-Förderung. Das bezugsfertige Haus umfasst unter anderem sämtliche Bodenbeläge, Malerarbeiten und Sanitärinstallationen.
Für eine nachhaltige Energieversorgung ist das Haus bereits mit einer Photovoltaikanlage und einem Batteriespeicher ausgestattet.
Jetzt Beratungstermin vereinbaren!
Dieses Haus bietet Ihnen ein einzigartiges Wohnerlebnis mit viel Platz für Ihre individuellen Bedürfnisse. Lassen Sie sich diese Chance nicht entgehen und kontaktieren Sie uns noch heute!
📞 Kontaktieren Sie uns für weitere Informationen!
Der Preis beinhaltet das Grundstück inkl. schlüsselfertigem Haus ohne Baunebenkosten und voraussichtlicher Außenanlagen.
Die Gebäudebestandteile eines Büdenbender-Hauses entsprechen bereits den hohen Anforderungen der KFW-Förderung. Das gesamte Haus erhält nach Wunsch das KfW40 Energieeffizienz Zertifikat für das ein Förderkredit von 100.000 EUR in Anspruch genommen werden kann. Die Konditionen hierzu entnehmen Sie bitte der KfW.
Besonderheiten:
Zusatzinfos:
Ausstattung
BEZUGSFERTIG
• Komplettausstattung mit Elektro-, Sanitär- und Heizungsinstallation
• WEKA 3-Scheiben-Isolierverglasung, mit 7-Kammer- Profil
• Viessmann- Luftwasserwärmepumpe mit Fußbodenheizung einzelregelbar (nur € 50,--/Monat an Heizkosten)
• Ausstattungsberatung / Werkplanung
(Bemusterung mit einer großen Auswahl an Sanitärobjekten, Fliesen und Bodenbelägen
• Produktion ausschließlich in Deutschland
• Nur Markenfabrikate deutscher Hersteller
• Planungs- und Ingenieurleistungen (inkl. Bedarfsanalyse, Architektenleistungen, detailliertes Angebot, Bauantragsgespräch, Bauantragsplanung, Vorabzugsplanung)
• Ausfüllen der Versorgungsanträge
• Energieausweis (Wärme- und Schallschutznachweiß)
• Statische Berechnungen für Ihr Traumhaus
• Überwachung Bauprozess / Bauleitung
• Einrichtung der Baustelle
• Lieferung und Montage (einschließlich Transport, Kran, Gerüst, Baustellen-WC, Abfallcontainer)
• diffusionsoffene und atmungsaktive Außenwand 36,5 cm (atmo-tec+ Klimawand) ganz ohne Folie und Styropor
• Optional: Keller statt Fundamentplatte (gegen Mehrpreis)
• Festpreisgarantie (22 Monate)
• Gewährleistung nach BGB von bis zu fünf Jahren sowie eine 50-jährige Garantie auf die Grundkonstruktion und Standsicherheit
Keller – ausgebaut und "weiße"Wanne
• Hauswirtschaftsraum mit viel Platz für Waschmaschine und Trockner.
• drei großzügig gestaltete Räume mit viel Lagerplatz oder als Hobbyräume nutzbar.
Erdgeschoss – Offenes Wohnen
• Wohn-/Essbereich: Lichtdurchflutetes Wohnzimmer mit offener Gestaltung und direktem Zugang zur Sonnenterrasse.
• Arbeits- bzw. Gästezimmer.
• Gäste-WC: Komfortabel und stilvoll ausgestattet
• Diele & Treppenaufgang: Einladender Eingangsbereich mit Garderobe
Dachgeschoss – Entspannte Privatsphäre
• Schlafzimmer: Geräumiges Elternschlafzimmer mit separater Ankleide.
• 2 Kinderzimmer : Helle Räume, perfekt für Kinder oder Gäste.
• Badezimmer: Großzügiges Familienbad mit Badewanne, bodengleicher Dusche, Waschbecken & WC
Unser Rundum-Sorglos-Paket für Sie:
Wir begleiten Sie durch den gesamten Bauprozess: Von der ersten individuellen Vorplanung durch unseren Architekten über die behördlichen Genehmigungsverfahren bis hin zur Bodenplatte und Bauüberwachung – wir kümmern uns um alles bis zur Schlüsselübergabe. So können Sie sich entspannt auf Ihr neues Zuhause freuen.
Highlights des Hauses
✅ Zimmer: 6 (davon 4 Schlafzimmer)
✅ Bäder: 1 Badezimmer im OG + 1 Gäste-WC mit Dusche im EG
✅ Nachhaltigkeit: Klimafreundliches Wohngebäude in Holzfachwerkkonstruktion (KfW40 förderfähig)
✅ inklusive Bodenplatte und bezugsfertigem Keller
Individuelle Anpassungsmöglichkeiten
Das Haus wird bezugsfertig inkl. Bodenplatte und Keller erstellt. Der angegebene Preis umfasst das Grundstück sowie das schlüsselfertige Haus mit Keller, jedoch ohne Baunebenkosten und voraussichtliche Außenanlagen.
Energieeffizienz & Nachhaltigkeit
Die Gebäudebestandteile eines Büdenbender-Hauses erfüllen bereits die hohen Anforderungen einer KfW-Förderung. Das bezugsfertige Haus umfasst unter anderem sämtliche Bodenbeläge, Malerarbeiten und Sanitärinstallationen. Für eine nachhaltige Energieversorgung kann das Haus mit einer Photovoltaikanlage ausgestattet werden. Optional kann ein Batteriespeicher ergänzt werden, um die Energieeffizienz weiter zu steigern.
Jetzt Beratungstermin vereinbaren!
Dieses Haus bietet Ihnen ein einzigartiges Wohnerlebnis mit viel Platz für Ihre individuellen Bedürfnisse. Lassen Sie sich diese Chance nicht entgehen und kontaktieren Sie uns noch heute!
📞 Kontaktieren Sie uns für weitere Informationen!
Sonstiges
Der Kaufpreis bezieht sich auf das schlüsselfertige Einfamilienhaus inklusive Grundstück.
Zusätzlich fallen Nebenkosten wie Notar, Grunderwerbsteuer etc. an.
Die Provision ist nur für den Grundstücksanteil in Höhe von 75.618 EUR (3 % zzgl.. Mwst.) an den Grundstücksmakler fällig.
Das Grundstück ist unbebaut - keine Abrisskosten- und voll erschlossen.
Bilder und Grundrisse sind als künstlerische Illustrationen zu verstehen.
Bitte beachten Sie, dass das Angebot auf Grundlage des geltenden Bebauungsplans erstellt wurde und ein Bauantrag erforderlich ist. Selbstverständlich übernehmen wir die vollständige Antragstellung für Sie – dieser Service ist bereits im Hauspreis enthalten
Das Neubauprojekt befindet sich in einer der begehrtesten und wertstabilsten Wohnlagen Starnbergs.
Eingebettet in eine ruhige, grüne Umgebung, verbindet der Standort ein Höchstmaß an Privatsphäre mit einer hervorragenden Anbindung an die Stadt und das wirtschaftlich starke Münchner Umland.
Die Nachbarschaft ist geprägt von gepflegten Einfamilienhäusern und Villenanwesen – ein Umfeld, das Stil, Ruhe und Sicherheit vermittelt. Nur wenige Minuten entfernt liegen der Starnberger See mit seinen Uferpromenaden, Segelvereinen und Restaurants sowie zahlreiche Freizeit- und Sportmöglichkeiten.
Auch Schulen, Kindergärten, Einkaufsmöglichkeiten und ärztliche Versorgung sind schnell erreichbar – ebenso wie das lebendige Stadtzentrum mit seinen Boutiquen, Cafés und kulturellen Angeboten.
Die Verkehrsanbindung ist hervorragend: Eine S-Bahn-Station verbindet Starnberg in kurzer Taktung mit der Münchner Innenstadt, die A95 und A952 bieten ideale Anbindungen in Richtung München und Garmisch. Der Flughafen München ist in etwa einer Stunde erreichbar.
Starnberg steht seit Jahrzehnten für Lebensqualität, Werthaltigkeit und eine außergewöhnliche Lagequalität – ein Ort, an dem sich Natur und urbane Nähe in selten erreichter Balance ergänzen.








