
EFH in Riedmoos bei Unterschleißheim.
Willkommen in Ihrem neuen Traumhaus! Dieses großzügige Einfamilienhaus liegt unverbaut in Feldrandlage mit freiem Blick zum Sonnenuntergang. Es bietet Ihnen nicht nur viel Platz, sondern auch eine hochwertige Ausstattung und eine nachhaltige Bauweise. Mit einer Wohnfläche von knapp 135 m² und 5 Zimmern ist es ideal für Familien, die modernen Komfort und individuelle Gestaltungsmöglichkeiten suchen.
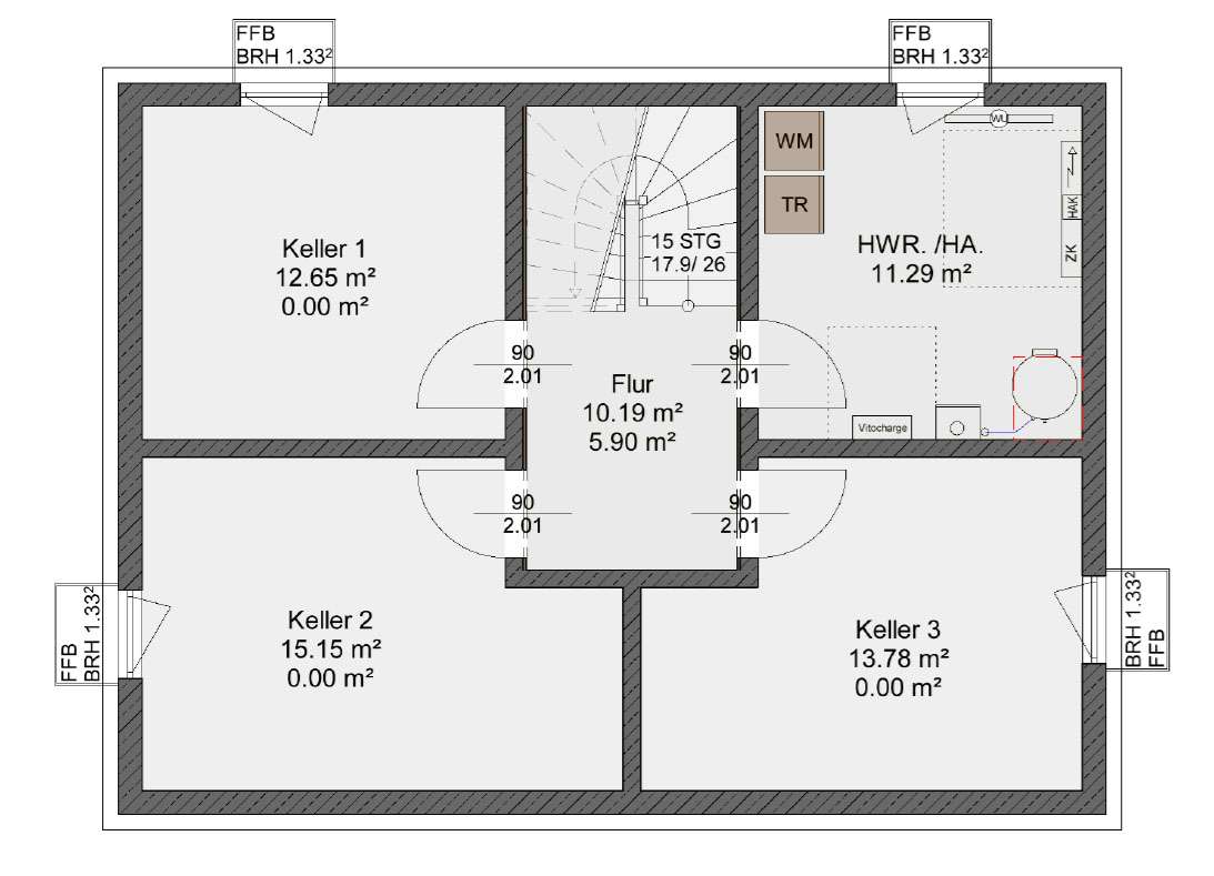
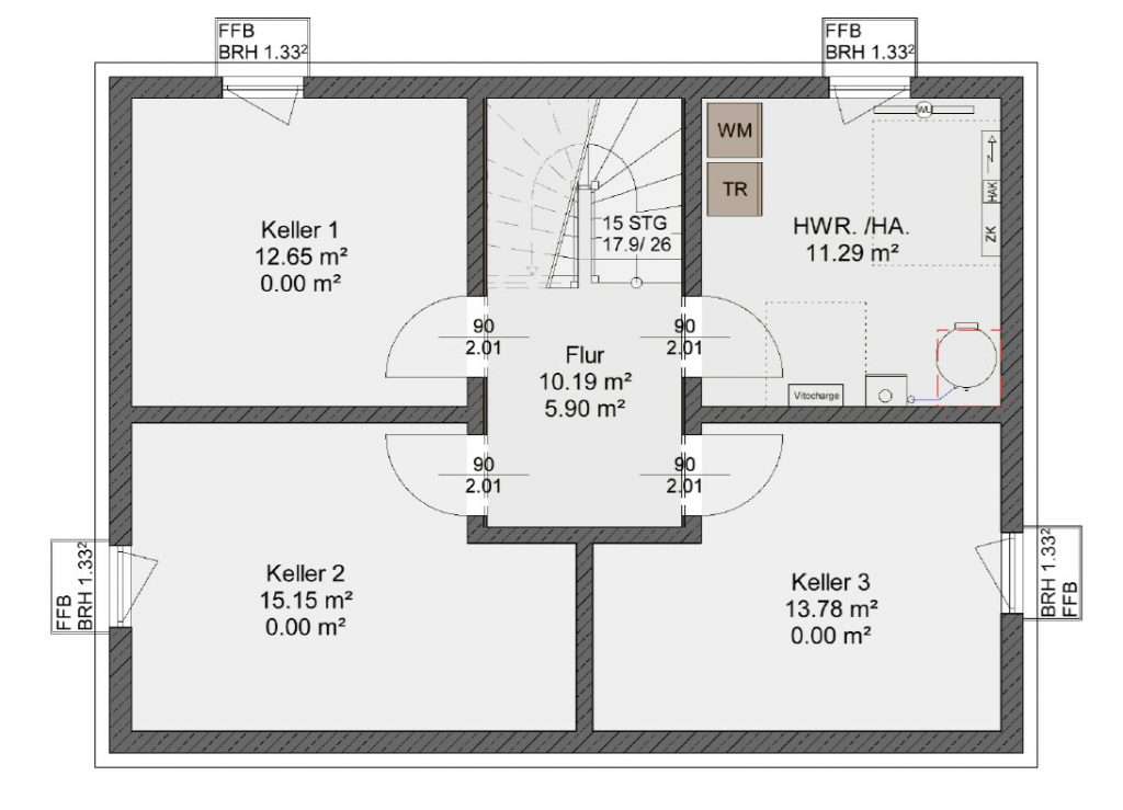
Keller – ausgebaut
• Hauswirtschaftsraum mit viel Platz für Waschmaschine und Trockner.
• drei großzügig gestaltete Räume mit viel Lagerplatz oder als Hobbyräume nutzbar.
Erdgeschoss – Offenes Wohnen & Arbeiten
• Wohn-/Essbereich: Lichtdurchflutetes Wohnzimmer mit offener Gestaltung und direktem Zugang zur Terrasse.
• Küche : Moderne Einbauküche mit Kochinsel für gesellige Kochabende.
• Büro/Arbeitszimmer: Ideal für Homeoffice oder als Gästezimmer nutzbar.
• Hauswirtschaftsraum/Hobbyraum: Praktischer Stauraum mit Platz für Waschmaschine & Trockner.
• Gäste-WC: Komfortabel und stilvoll ausgestattet.
• Diele & Treppenaufgang: Einladender Eingangsbereich mit Garderobe.
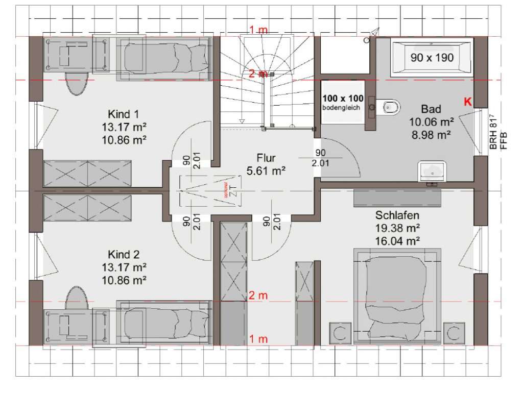
Obergeschoss – Entspannte Privatsphäre
• Schlafzimmer: Geräumiges Elternschlafzimmer mit separater Ankleide.
• Kinderzimmer 1 & Kinderzimmer 2 : Helle Räume, perfekt für Kinder oder Gäste.
• Badezimmer: Großzügiges Familienbad mit Badewanne, bodengleicher Dusche, Waschbecken & WC.
Unser Rundum-Sorglos-Paket für Sie:
Wir begleiten Sie durch den gesamten Bauprozess: Von der ersten individuellen Vorplanung durch unseren Architekten über die behördlichen Genehmigungsverfahren bis hin zur Bodenplatte und Bauüberwachung – wir kümmern uns um alles bis zur Schlüsselübergabe. So können Sie sich entspannt auf Ihr neues Zuhause freuen.
Highlights des Hauses
✅ Zimmer: 5 (davon 4 Schlafzimmer)
✅ Bäder: 1 Badezimmer im OG + 1 Gäste-WC im EG
✅ Nachhaltigkeit: Klimafreundliches Wohngebäude in Holzfachwerkkonstruktion
✅ ausgebauter Keller mit viel Platz
Individuelle Anpassungsmöglichkeiten
Das Haus wird bezugsfertig inkl. Keller erstellt. Der angegebene Preis umfasst das Grundstück sowie das schlüsselfertige Haus mit Keller, jedoch ohne Baunebenkosten und voraussichtliche Außenanlagen. Der Grundriss ist änderbar.
Energieeffizienz & Nachhaltigkeit
Die Gebäudebestandteile unseres Hauses erfüllen bereits die hohen Anforderungen einer KfW-Förderung.
Für eine nachhaltige Energieversorgung ist das Haus mit einer Photovoltaikanlage ausgestattet. Das gesamte Haus erhält nach Wunsch das QNG Energieeffizienz Zertifikat für das ein Förderkredit in Anspruch genommen werden kann. Die Konditionen hierzu entnehmen Sie bitte der KfW. Das bezugsfertige Haus umfasst unter anderem sämtliche Bodenbeläge, Malerarbeiten und Sanitärinstallationen.
📞 Kontaktieren Sie uns für weitere Informationen!
Besonderheiten:
Zusatzinfos:
Ausstattung
BEZUGSFERTIG
• Komplettausstattung mit Elektro-, Sanitär- und Heizungsinstallation
• Luftwasserwärmepumpe mit Fußbodenheizung einzelregelbar • Planungs- und Ingenieurleistungen
• Energieausweis (Wärme- und Schallschutznachweiß)
• Statische Berechnungen
• Überwachung Bauprozess / Bauleitung
• Einrichtung der Baustelle
• Lieferung und Montage (einschließlich Transport, Kran, Gerüst, Baustellen-WC, Abfallcontainer)
• Festpreisgarantie
• Fertigstellungsgarantie
• Gewährleistung nach BGB
• Zahlungsplan nach Baufortschritt
Sonstiges
Der Kaufpreis bezieht sich auf das schlüsselfertige Einfamilienhaus inklusive Grundstück.
Das Grundstück hat einen Kaufpreis in Höhe von 779.000 EUR und ist provisionsfrei.
Zusätzlich fallen Nebenkosten wie Notar, Grunderwerbsteuer etc. an.
Das Grundstück ist unbebaut - keine Abrisskosten- und erschlossen.
Bilder und Grundrisse sind als künstlerische Illustrationen zu verstehen.
Bitte beachten Sie, dass das Angebot auf Grundlage des geltenden Bebauungsplans erstellt wurde und ein Bauantrag erforderlich ist. Selbstverständlich übernehmen wir die vollständige Antragstellung für Sie.
Riedmoos ist ein idyllischer Ortsteil von Unterschleißheim im nördlichen Landkreis München, der ländlichen Charme mit urbaner Nähe verbindet. Geprägt von großzügigen Ein- und Zweifamilienhäusern, Kleingärten und vereinzelten bäuerlichen Anwesen, bietet Riedmoos eine ruhige und naturnahe Wohnlage. Die Umgebung lädt zu Spaziergängen und Radtouren ein, beispielsweise zum nahegelegenen Unterschleißheimer See, einem beliebten Badesee im Landschaftsschutzgebiet.
Trotz der ruhigen Lage ist Riedmoos verkehrstechnisch gut angebunden: Über die A92 und die B13 erreichen Sie München und den Flughafen schnell mit dem Auto. Die S-Bahn-Stationen Lohhof und Oberschleißheim sind etwa 3,7 km entfernt und mit dem Fahrrad oder Bus erreichbar. Eine Buslinie verbindet Riedmoos mit dem S-Bahnhof Unterschleißheim (West).
In unmittelbarer Nähe finden sich Kindergärten, Schulen und Einkaufsmöglichkeiten, die ein familienfreundliches Umfeld schaffen. Zudem bietet die Region zahlreiche Freizeitangebote wie Sportvereine, Radwege und nahegelegene Badeseen.
Riedmoos ist somit der ideale Ort für alle, die naturnahes Wohnen in einer familienfreundlichen Umgebung mit guter Anbindung an die Metropolregion München suchen.


