
Germering
Diese perfekt geschnittene Doppelhaushälfte (rechts) überzeugt durch eine klare, familienfreundliche Struktur:
Ein Keller könnte ebenso realisiert werden. Ein Angebot und die Planung für eine Garage besteht bereits.
Im Erdgeschoss erwartet Sie ein weitläufiger Wohn- und Essbereich mit direktem Zugang zur offenen Küche. Im Hauswirtschaftsraum befindet sich Platz für Waschmaschine und Trockner. Unter der Treppe im Flur ist ein Abstellraum realisiert.
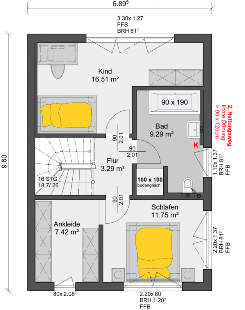
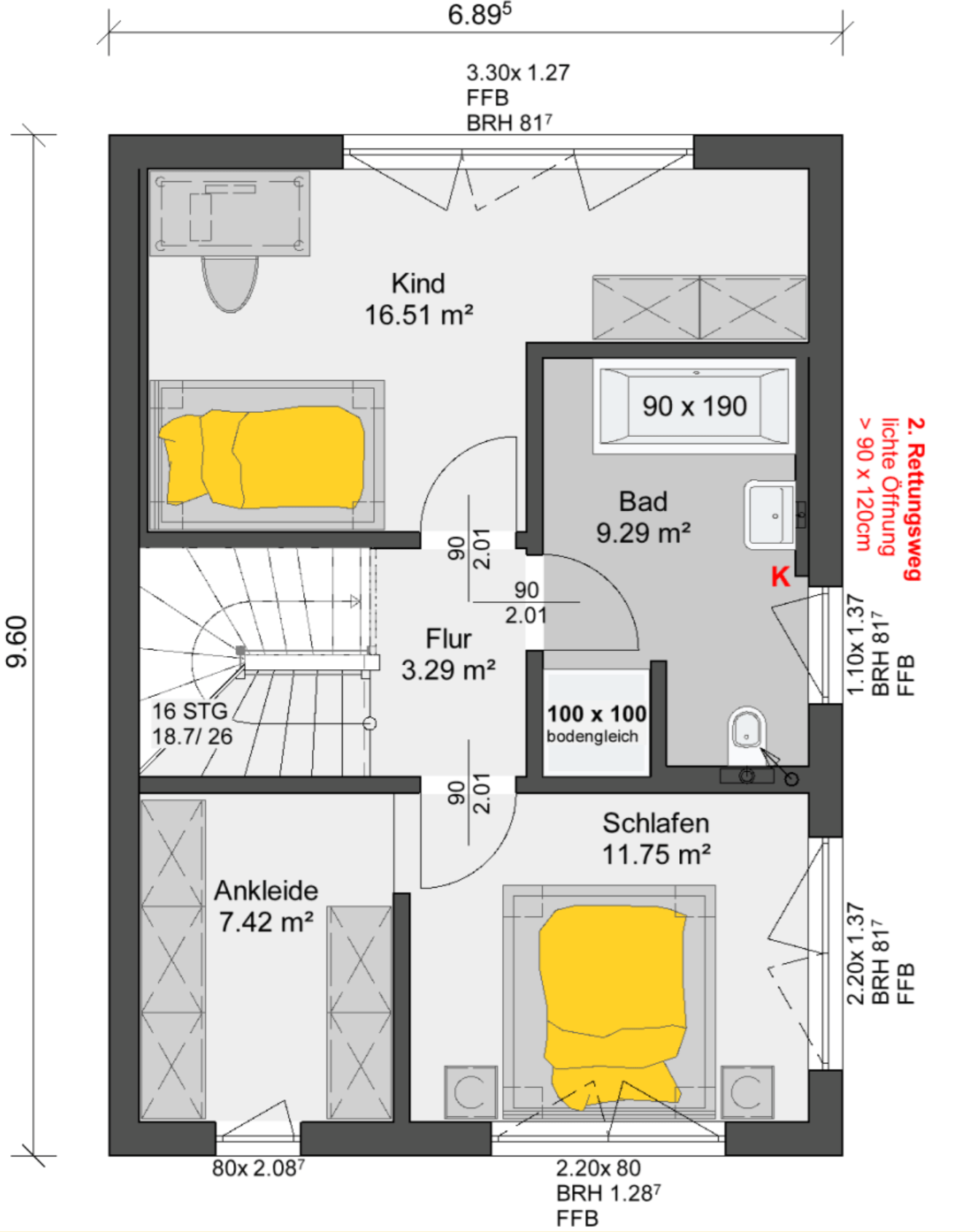
Im Obergeschoss bietet das Haus ein helles Elternschlafzimmer mit separater Ankleide, ein Kinderzimmer sowie ein hochwertig ausgestattetes Familienbad mit Badewanne und ebenerdiger Dusche. Die geschickte Raumaufteilung schafft viel Platz zum Leben und Entspannen – ein Zuhause, das keine Wünsche offenlässt.
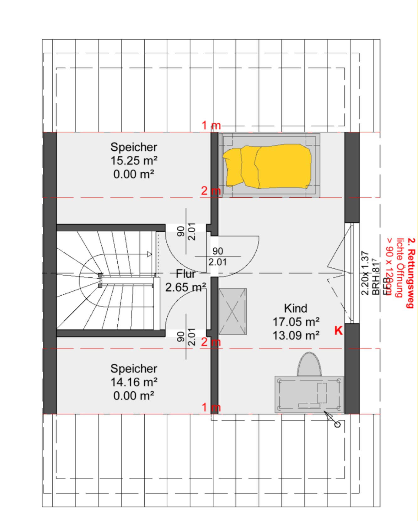
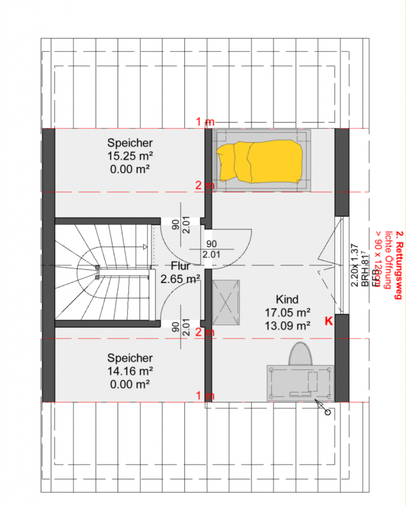
Im ausgebauten Dachgeschoss gibt es die Möglichkeit eines zweiten Kinderzimmers oder ein Zimmer, das man als Homeoffice nutzen kann. Des Weiteren bietet das Dachgeschoss viel Stauraum.
Erdgeschoss – Offenes Wohnen
• offen gestalteter Wohn-/Essbereich mit Zugang zum großzügigem Garten und Blick in den sonnigen Süden
• Gäste-WC: Komfortabel und stilvoll ausgestattet
• Diele & Treppenaufgang: Einladender Eingangsbereich mit viel Platz für Garderobe
• Hauswirtschaftsraum: Praktischer
Stauraum mit Platz für Waschmaschine & Trockner.
Obergeschoss – Entspannte Privatsphäre
• Elternschlafzimmer mit separater Ankleide
• ein Kinderzimmer mit Blick in den eigenen Garten
• Badezimmer: Großzügiges Familienbad mit Badewanne und bodengleicher Dusche, Waschbecken & WC
Dachgeschoss – Mehr Platz
• ein weiteres Kinderzimmer oder auch als Homeoffice nutzbar
• zwei separate Speicherräume mit viel Platz
Unser Rundum-Sorglos-Paket für Sie:
Wir begleiten Sie durch den gesamten Bauprozess: Von der ersten individuellen Vorplanung durch unseren Architekten über die behördlichen Genehmigungsverfahren bis hin zur Bodenplatte und Bauüberwachung – wir kümmern uns um alles bis zur Schlüsselübergabe. So können Sie sich entspannt auf Ihr neues Zuhause freuen.
Highlights des Hauses
✅ Zimmer: 4
✅ Homeoffice im Dachgeschoss
✅ Bäder: 1 Badezimmer im OG + 1 Gäste-WC im EG
✅ Nachhaltigkeit: Klimafreundliches Wohngebäude in Holzfachwerkkonstruktion (förderfähig)
✅ Photovoltaik: PV-Vorbereitung bereits vorhanden
Individuelle Anpassungsmöglichkeiten
Das Haus wird bezugsfertig ohne Keller auf einer Bodenplatte erstellt. Der angegebene Preis umfasst das Grundstück sowie das schlüsselfertige Haus mit Bodenplatte, jedoch ohne Baunebenkosten und voraussichtliche Außenanlagen.
Energieeffizienz & Nachhaltigkeit
Die Gebäudebestandteile eines Büdenbender-Hauses erfüllen bereits die hohen Anforderungen einer KfW-Förderung. Das bezugsfertige Haus umfasst unter anderem sämtliche Bodenbeläge, Malerarbeiten und Sanitärinstallationen.
Für eine nachhaltige Energieversorgung kann das Haus mit einer Photovoltaikanlage ausgestattet werden. PV-Vorbereitung vorhanden! Optional kann ein Batteriespeicher ergänzt werden, um die Energieeffizienz weiter zu steigern.
Jetzt Beratungstermin vereinbaren!
Dieses Haus bietet Ihnen ein einzigartiges Wohnerlebnis mit viel Platz für Ihre individuellen Bedürfnisse. Lassen Sie sich diese Chance nicht entgehen und kontaktieren Sie uns noch heute!
📞 Kontaktieren Sie uns für weitere Informationen!
Der Preis beinhaltet das Grundstück inkl. schlüsselfertigem Haus und Bodenplatte ohne Baunebenkosten und voraussichtlicher Außenanlagen.
Die Gebäudebestandteile eines Büdenbender-Hauses entsprechen bereits den hohen Anforderungen der KFW40-Förderung. Das gesamte Haus erhält nach Wunsch auch das QNG Energieeffizienz Zertifikat für das ein Förderkredit in Anspruch genommen werden kann. Die Konditionen hierzu entnehmen Sie bitte der KfW.
Besonderheiten:
Zusatzinfos:
Ausstattung
BEZUGSFERTIG
• Komplettausstattung mit Elektro-, Sanitär- und Heizungsinstallation
• WEKA 3-Scheiben-Isolierverglasung, mit 7-Kammer- Profil
• Viessmann- Luftwasserwärmepumpe mit Fußbodenheizung einzelregelbar (nur € 50,--/Monat an Heizkosten)
• Ausstattungsberatung / Werkplanung
(Bemusterung mit einer großen Auswahl an Sanitärobjekten, Fliesen und Bodenbelägen • Produktion ausschließlich in Deutschland
• Nur Markenfabrikate deutscher Hersteller
• Planungs- und Ingenieurleistungen (inkl. Bedarfsanalyse, Architektenleistungen, detailliertes Angebot, Bauantragsgespräch, Bauantragsplanung, Vorabzugsplanung)
• Ausfüllen der Versorgungsanträge
• Energieausweis (Wärme- und Schallschutznachweiß)
• Statische Berechnungen für Ihr Traumhaus
• Überwachung Bauprozess / Bauleitung
• Einrichtung der Baustelle
• Lieferung und Montage (einschließlich Transport, Kran, Gerüst, Baustellen-WC, Abfallcontainer)
• diffusionsoffene und atmungsaktive Außenwand 36,5 cm (atmo-tec+ Klimawand) ganz ohne Folie und Styropor
• Bodenplatte inklusive
• Festpreisgarantie (22 Monate)
• Gewährleistung nach BGB von bis zu fünf Jahren sowie eine 50-jährige Garantie auf die Grundkonstruktion und Standsicherheit
Sonstiges
Zusätzlich fallen Nebenkosten wie Notar, Grunderwerbsteuer etc. an.
Die Provision ist nur für den Grundstücksanteil 470.000 EUR in Höhe 3 % zzgl.. Mwst. an den Grundstücksmakler fällig.
Das Grundstück ist bereits erschlossen. Bebaut ist das Grundstück aktuell mit einem alten abrissreifen Einfamilienhaus. Abrisskosten tragen die Käufer je zur Hälfte.
Abbildungen zeigen auch optionale Sonderausstattungen!
Ruhige Wohnlage mit viel Grün
Diese gepflegte Doppelhaushälfte befindet sich in einer ruhigen und familienfreundlichen Wohngegend von Germering. Die Umgebung ist geprägt von Einfamilien- und Reihenhäusern mit Gärten – ideal für alle, die naturnah und dennoch stadtnah wohnen möchten.
Gute Anbindung an den öffentlichen Nahverkehr
Die S-Bahn-Station Germering-Unterpfaffenhofen (S8) ist schnell erreichbar und ermöglicht eine direkte Verbindung in die Münchner Innenstadt sowie zum Flughafen. Mehrere Buslinien in der Umgebung ergänzen das Mobilitätsangebot optimal.
Einkaufsmöglichkeiten direkt vor Ort
Supermärkte, Bäckereien und Drogerien befinden sich in kurzer Entfernung. Für einen größeren Einkaufsbummel stehen die Germeringer Einkaufs-Passagen (GEP) sowie die nahegelegenen Pasing Arcaden zur Verfügung.
Familienfreundliche Infrastruktur
Kindergärten, Grundschulen und weiterführende Schulen sind in Germering sehr gut vertreten und bieten kurze Wege für Familien mit Kindern.
Ärztliche Versorgung und Apotheken
Haus- und Fachärzte sowie mehrere Apotheken befinden sich direkt in der Stadt, sodass eine umfassende medizinische Versorgung jederzeit gewährleistet ist.
Naherholung direkt vor der Tür
Die zahlreichen Grünflächen, Spielplätze und Sportanlagen sowie der Germeringer See bieten viele Möglichkeiten zur Freizeitgestaltung, Erholung und Bewegung im Freien.
Attraktive Kombination aus Stadt und Natur
Das großzügige Grundstück bietet viel Privatsphäre, Platz zum Spielen, Gärtnern oder Entspannen – eine seltene Gelegenheit in dieser beliebten Wohnlage im Münchner Umland.
Wertstabile Lage mit Zukunft
Germering profitiert von seiner Nähe zu München, der hervorragenden Infrastruktur sowie einer hohen Lebensqualität. Dies macht die Lage nicht nur heute, sondern auch langfristig zu einer wertbeständigen Wohnadresse.




