
Willkommen in Ihrem neuen Traumhaus! Dieses großzügige Einfamilienhaus bietet Ihnen nicht nur viel Platz, sondern auch eine hochwertige Ausstattung und eine nachhaltige Bauweise. Mit einer Wohnfläche von knapp 118 m² und 5 Zimmern ist es ideal für Familien, die modernen Komfort und individuelle Gestaltungsmöglichkeiten suchen.
Erdgeschoss – Offenes Wohnen & Arbeiten
• Wohn-/Essbereich: Lichtdurchflutetes Wohnzimmer mit offener Gestaltung und direktem Zugang zur Terrasse.
• Küche : Moderne Einbauküche mit Kochinsel für gesellige Kochabende.
• Büro/Arbeitszimmer: Ideal für Homeoffice oder als Gästezimmer nutzbar.
• Hauswirtschaftsraum/Hobbyraum: Praktischer Stauraum mit Platz für Waschmaschine & Trockner.
• Gäste-WC: Komfortabel und stilvoll ausgestattet.
• Diele & Treppenaufgang: Einladender Eingangsbereich mit Garderobe.
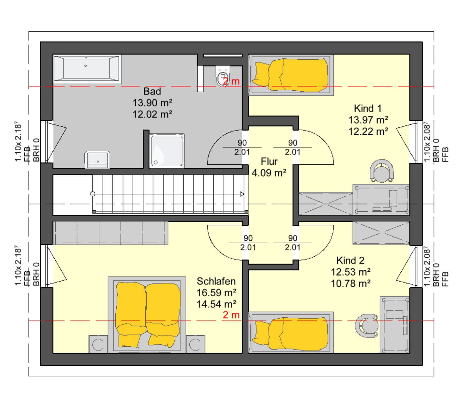
Obergeschoss – Entspannte Privatsphäre
• Schlafzimmer: Geräumiges Elternschlafzimmer mit ausreichend Platz für Schränke.
• Kinderzimmer 1 & Kinderzimmer 2 : Helle Räume, perfekt für Kinder oder Gäste.
• Badezimmer: Großzügiges Familienbad mit Badewanne, bodengleicher Dusche, Waschbecken & WC.
Unser Rundum-Sorglos-Paket für Sie:
Wir begleiten Sie durch den gesamten Bauprozess: Von der ersten individuellen Vorplanung durch unseren Architekten über die behördlichen Genehmigungsverfahren bis hin zur Bodenplatte und Bauüberwachung – wir kümmern uns um alles bis zur Schlüsselübergabe. So können Sie sich entspannt auf Ihr neues Zuhause freuen.
Highlights des Hauses
✅ Zimmer: 5 (davon 3 Schlafzimmer)
✅ Bäder: 1 Badezimmer im OG + 1 Gäste-WC im EG
✅ Nachhaltigkeit: Klimafreundliches Wohngebäude in Holzfachwerkkonstruktion
✅ Keller: optional – zu allen unseren Häusern ist ein Keller möglich
Individuelle Anpassungsmöglichkeiten
Das Haus wird bezugsfertig auf einer Bodenplatte erstellt. Auf Wunsch kann auch ein Keller realisiert werden (gegen Aufpreis). Der angegebene Preis umfasst das Grundstück sowie das schlüsselfertige Haus mit Bodenplatte, jedoch ohne Baunebenkosten und voraussichtliche Außenanlagen.
Energieeffizienz & Nachhaltigkeit
Die Gebäudebestandteile eines Büdenbender-Hauses erfüllen bereits die hohen Anforderungen einer KfW-Förderung. Das bezugsfertige Haus umfasst unter anderem sämtliche Bodenbeläge, Malerarbeiten und Sanitärinstallationen.
Für eine nachhaltige Energieversorgung kann das Haus mit einer Photovoltaikanlage ausgestattet werden. Optional kann ein Batteriespeicher ergänzt werden, um die Energieeffizienz weiter zu steigern.
Jetzt Beratungstermin vereinbaren!
Dieses Haus bietet Ihnen ein einzigartiges Wohnerlebnis mit viel Platz für Ihre individuellen Bedürfnisse. Lassen Sie sich diese Chance nicht entgehen und kontaktieren Sie uns noch heute!
📞 Kontaktieren Sie uns für weitere Informationen!
Besonderheiten:
Zusatzinfos:
Ausstattung
Die vorgestellte Projektierung umfasst folgende Leistungen:
BEZUGSFERTIG
• Komplettausstattung mit Elektro-, Sanitär- und Heizungsinstallation
• WEKA 3-Scheiben-Isolierverglasung, mit 7-Kammer- Profil
• Viessmann- Luftwasserwärmepumpe mit Fußbodenheizung einzelregelbar
(nur € 50,--/Monat an Heizkosten)
• Ausstattungsberatung / Werkplanung
(Bemusterung mit einer großen Auswahl an Sanitärobjekten, Fliesen und Bodenbelägen
• Produktion ausschließlich in Deutschland
• Nur Markenfabrikate deutscher Hersteller
• Planungs- und Ingenieurleistungen (inkl. Bedarfsanalyse, Architektenleistungen, detailliertes Angebot, Bauantragsgespräch, Bauantragsplanung, Vorabzugsplanung)
• Ausfüllen der Versorgungsanträge
• Energieausweis (Wärme- und Schallschutznachweiß)
• Statische Berechnungen für Ihr Traumhaus
• Überwachung Bauprozess / Bauleitung
• Einrichtung der Baustelle
• Lieferung und Montage (einschließlich Transport, Kran, Gerüst, Baustellen-WC, Abfallcontainer)
• diffusionsoffene und atmungsaktive Außenwand 36,5 cm (atmo-tec+ Klimawand) ganz ohne Folie und Styropor
• Optional: Keller statt Fundamentplatte (gegen Mehrpreis)
• Festpreisgarantie (22 Monate)
• Gewährleistung nach BGB von bis zu fünf Jahren sowie eine 50-jährige Garantie auf die Grundkonstruktion und Standsicherheit
Sonstiges
Der Grundstückspreis ist im Gesamtpreis enthalten. Preis in schlüsselfertiger/bezugsfertiger Erstellung.
Die Visualisierungen zeigen Ihnen verschiedene Möglichkeiten der Architektur. Bauen Sie nach Ihren Wünschen!
Der Kaufpreis pro Stellplatz beträgt 5.000 € und ist nicht im Kaufpreis enthalten.
Zusätzlich fallen Nebenkosten wie Notar, Grunderwerbsteuer etc. an.
Abbildungen zeigen auch optionale Sonderausstattungen!
Provisionsfrei.
Alle Angaben erfolgen nach bestem Wissen und Gewissen; Irrtümer und Änderungen vorbehalten.
Offendorf ist ein Kirchdorf und Ortsteil der Gemeinde Mindelstetten im oberbayerischen Landkreis Eichstätt. Das beschauliche Offendorf ist auf den Resten eines herrschaftlichen Schlosses erbaut worden. Offendorf kann auf eine herrschaftliche Geschichte zurückblicken. Das Schloss Offendorf in (Unter-)Offendorf war Sitz einer adeligen Hofmark. Von der gelungenen Verknüpfung von Moderne und Kultur zeugt der nun seit über 400 Jahren stattfindende Mindelstettener Markt. Die umliegende Gemeinde Mindelstetten bietet eine bestmögliche Nahversorgung von der Kindergroßtagespflege, dem Kindergarten bis hin zur Grundschule, einem Allgemeinmediziner, lokaler Gastronomie und Einkaufsmöglichkeiten. Einheimische, wie Besucher schätzen zudem die idyllische Lage zwischen Hopfengärten in der Altmühl-Jura-Region.











